金瓶梅在线播放,学长惩罚我下面放震蛋上课,无码无遮挡刺激喷水视频,护士长在办公室躁bd

全國服務熱線021-64162222

電動執行器閥門首頁 > 產品展示 > 電動執行器 >

產品名稱:直行程電動執行器[ 2020-06-11 ]

訂購熱線:021-64162222
訂購傳真:021-62677999
質量穩定:實行全過程質量監控,細致入微全方位檢測!
價格合理:高效內部成本控制,減少了開支,讓利于客戶
交貨快捷:先進生產流水線,充足的備貨,縮短了交貨期!
  • 產品介紹
  • 規格尺寸
  • 結構圖片
  • 一、直行程電動執行器詳細介紹

    上海湖泉閥門廠研制的直行程電動執行器,在吸取了國內外先進技術的前提下,根據我國工業控制系統特點,設計出的以AC220單相交流電為電源,接受來自 DCS,PLC系統和其他操作器的DC4~20mA,標準信號來控制執行器進行開關閥門或自動調節。電子控制模塊采用先進的混合集成電路,包含完整的保護功能,可現場控制或遠程控制,被設計成匣子形式,并用樹脂澆鑄密封。它被廣泛用于冶金,發電,石化,造紙,輕工 及環保等工業部門。

    二、直行程電動執行器主要特點

    1、有伺服系統,只需接入DC4~20mA(或DC1~5V)信號和AC220V單相電源即可工作。內設接線端子,接線極為簡單方便。
    2、采用先進的混合集成電路,體積小,可靠性高。
    3、反饋檢測采用導電塑料電位器,分辨率<0.4%。
    4、具有自診斷功能,當出現故障時,控制器上的指示燈會立即發出指示信號。
    5、調整工作零點(始點)和行程(終點)簡單易行。
    6、延時保護功能,額定負載時,能實行狀態自鎖,故障發生時,能立即起動保護,并可反向運行取消延時保護。


    三、直行程電動執行器主要功能

    1、斷信號保護功能----當輸入信號小于2mA時,視為斷信號,此時輸出軸按使用者預置的狀態動作。預置方式有三種:a、原位,b、全開,c、全關。
    2、過流保護功能----當執行機構過流時本機控制電路自動關閉,執行機構保持原位,以保護執行機構及閥門等。
    3、動態電制動功能---當電機運轉至給定值=反饋值時,由于運轉慣性惰走會使輸出軸振蕩。此時,由“軟件"程序發出了一個動態電制動指令,(即給出一個瞬間反向電流)使掃行機構立即停止運轉,無惰走振蕩,極大地提高了自動調節系統的可靠性及穩定性。
    4、上限及下限限位功能---根據現場需要,角行程在90度范圍內,基它在額定行程范圍內,上、下限兩端限位隨意可調,可調范圍在40%左右。出廠時,下限位設定為4mA,上限位設定為20mA。


    四、直行程電動執行器主要技術參數

    目名稱 DKZ標準型(不帶H) DKZ戶外型(帶H)
    控制機構 輸入信號
    反饋信號 0—10mAdc 4—20mAdc
    死區 0.4%—3% 0.4%—3%
    基本誤差 ±2.5% ±2.5%
    回差 ≤1.5% ≤1.5%
    限位 開側/閉側 開側/閉側
    開度檢測 精密導電塑料電位器 精密導電塑料電位器
    動力  動力 220V/50Hz 220V/50Hz
    驅動電機 伺服電機     伺服電機
    附屬機構 加熱器 選擇件     選擇件
    手動機構 手輪     手輪
    安裝條件   環境溫度 無加熱器—25℃~+70℃ 無加熱器—25℃~+70℃
    相對濕度 <95% <95%
    環境氣體 無腐蝕性氣體 無腐蝕性氣體
    接線口 十四線插頭 接線柱
    防護等級   IP65

  • 五、直行程電動執行器型號規格

    型號 額定負載 額定行程 全行程時間 額定電流 質量
    (N)  (mm)  (S)  (A) (Kg)
    DKZ-310(H) 4000 10  8 0.65 50
    16 125
    25 20
    30 24
    DKZ-410(H) 6400 18 16 0.65 50
    30 24
    40 32
    60 50
    DKZ-510(H) 16000 30 16 1.5 95
    50 30
    60 40
    100 60
    DKZ-610(H) 25000 30 16 2.5 110
    50 30
    60 40
    100 60

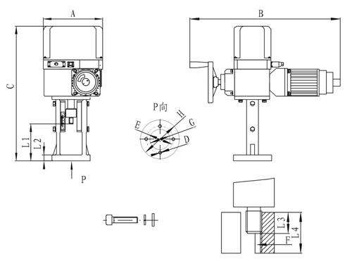
  • 六、直行程電動執行器結構圖

    直行程電動執行器產品結構圖

上一篇:部分回轉閥門電動裝置 / 下一篇:閥門電動執行器